9月28日下午,董事长周道林在知善楼8312会议室召开桂林学院校园二期规划设计方案专题会。雁山区政府、市自然资源局、市住建局分管领导,校长杨树喆,副校长邓志平、祝芸芸、刘文革、何玲、蒋毅,相关专业专家、设计单位及校园二期建设项目部相关人员参加会议。
会上,规划设计单位就调整优化后的两套学校二期规划设计方案作了详细的汇报说明。与会人员紧紧围绕学校办学实际情况,从空间布局、外观设计、设施配套等方面就规划设计方案进行了深入讨论。与会评审专家和有关政府职能部门负责人对规划设计方案提出了建设性的意见和建议。
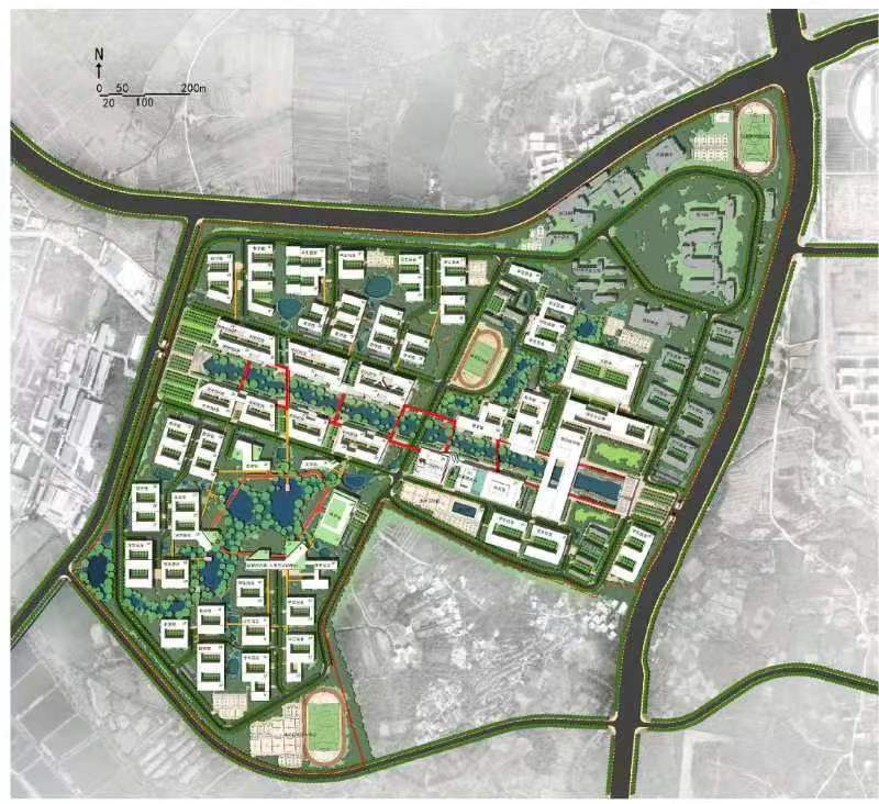
周道林强调方案设计要有浓厚的桂林特色,具有强烈的符号感和唯一性。设计单位用最简洁手法处理好规划的大方向,探索设计南北向主轴线;设置曲线交通环线;充分利用地形现状,在地势低洼地带做好水文章等。他要求设计单位认真梳理本次会议的反馈意见,综合两个方案的优点形成最终设计方案按规定程序报批。
设计方案一:



设计方案二:

